Adare Manor
2623 SE Ankeny Street, Portland, OR 97214
CATS WELCOME
The numbers you need to know
0-2
Beds
1
Bath
500-825
Square Feet
80
Walk Score
The 1925 charm of Adare Manor is evident as you enter beneath the romantic wrought iron balcony. You feel it from the moment you walk through the main entrance to find a sweeping staircase and finely hewn fireplace. You notice its substance, like a vintage brick manor standing in an enchanting courtyard.
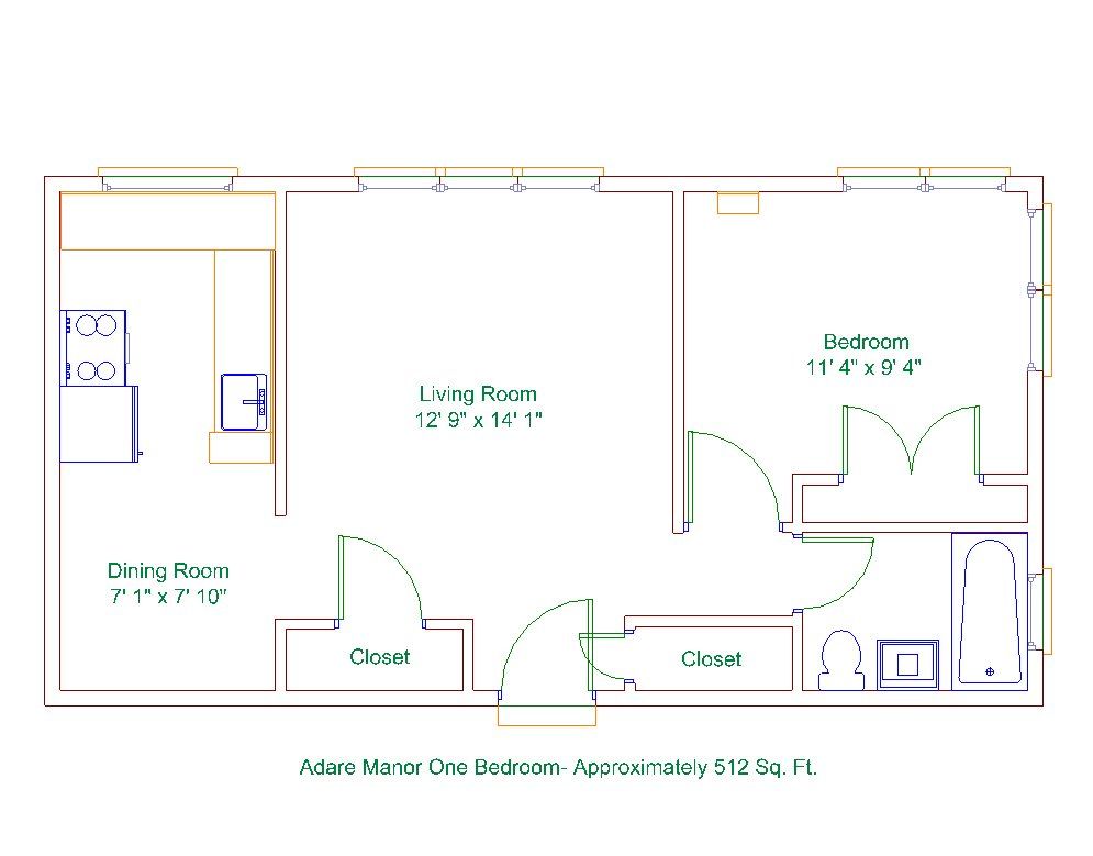
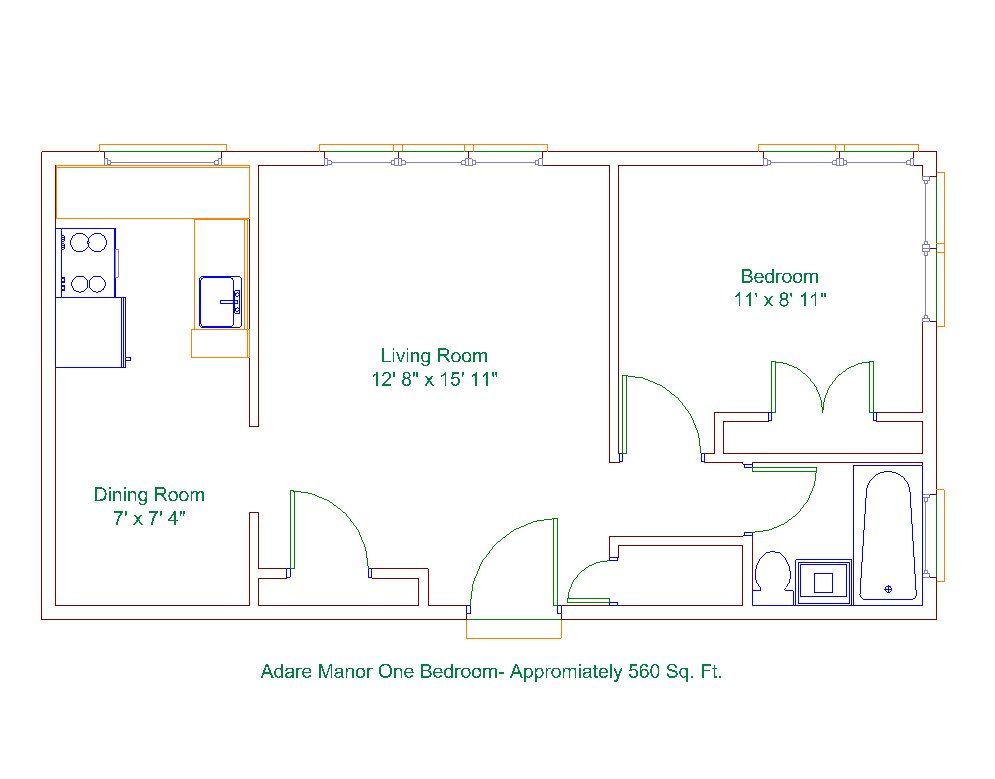
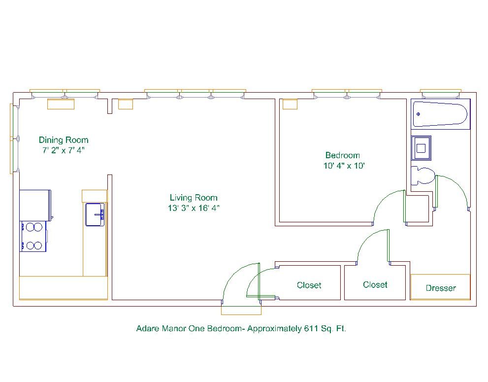
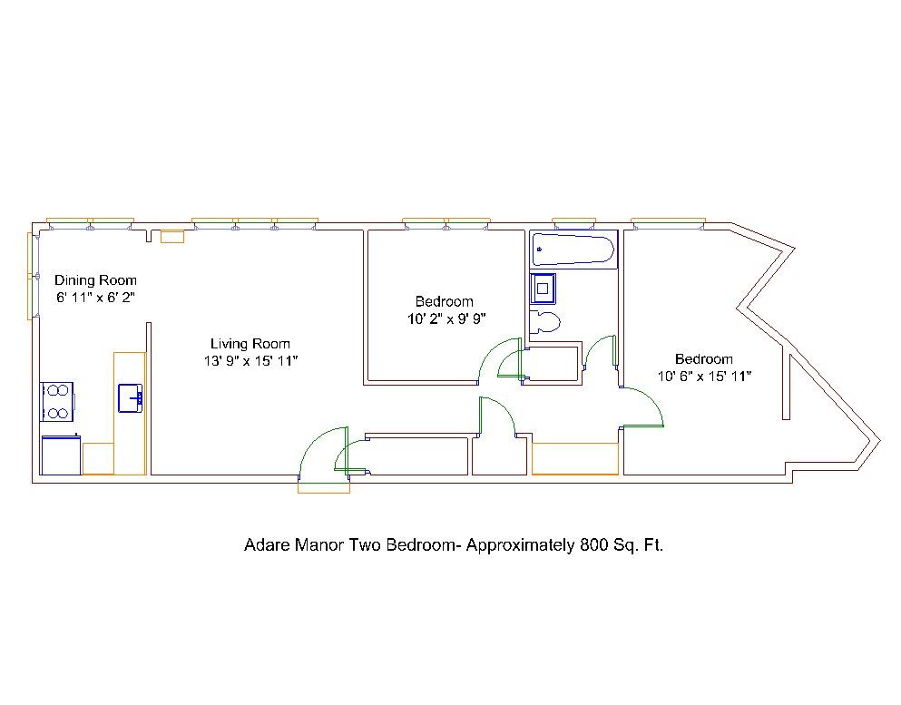
Adare Manor offers studio, 1 or 2 bedroom apartments on 3 levels. Each apartment has details that make it unique so that no two are exactly alike. Yet in each one, the hardwood floors create golden warmth that shines in the light of the large windows installed in spring 2018. Such details as tile counters, built in ironing boards or shelving and period light fixtures evoke a sense of elegance. The generous floorplans afford endless possibilities to accommodate your furniture and make Adare Manor your own home.
Adare is located just one block south of Burnside convenient to the celebrated Screen Door and Noble Rot restaurants. It is convenient to TriMet, boutiques and many celebrated eateries. Still close in on the south east side but tucked off the main thoroughfare on Ankeny Street. Enjoy the ease of living and the sumptuous style of Adare Manor.
CONTACT INFO:
PHONE: (503) 473-4800 ext. 401
EMAIL: adare@bristolurban.com
Services & Features
- 12 month leases (other lease terms available)
- Beautiful wood floors
- Cats welcome
- No Pet Rent
- Non-smoking property
- Off street parking available for rent depending on availability
- Onsite laundry facilities
- Original tile in the bath
- Period antique light fixtures
- Spacious wooden cabinetry
























